For Sale

Shearwater House, The Willows, Marton

Bed icon  4    Bath icon  4    receptions icon  2

£190,000

Save Saved
Contact Us

For further details on this property please call us

01522 845845


Book a Viewing

Features

  • BUILD YOUR OWN DREAM HOME!
  • Fantastic Self Build Opportunity
  • Full Planning Permission Granted
  • Superb Detached Family Home
  • Approx 2,723 Sq Ft
  • Private, South Facing Garden
  • Driveway & Double Garage
  • Call Today For Self Build Mortgage Advice

Summary

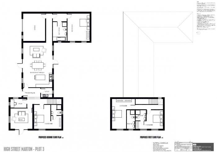
BUILD YOUR OWN DREAM HOME! FANTASTIC SELF BUILD OPPORTUNITY! Starkey&Brown are delighted to offer for sale this rarely available self build opportunity with full planning permission, located within an executive development of only five properties in the village of Marton, only 11 miles from Lincoln and 5 miles from Gainsborough. Shearwater House is a stunning, architect designed detached family home standing on a generous plot and extending to approximately 2,723 square feet. The property offers versatile and impressively spacious accommodation throughout and briefly comprises; spacious entrance hallway, study, snug, impressive open plan kitchen dining and family room, utility, two double bedrooms to the ground floor, ensuite shower room and family bathroom. To the first floor there are two further double bedrooms - both with ensuites. Outside there is a driveway with space for 2 cars, integral double garage and south west facing 'wrap around' garden which overlooks adjacent countryside. CALL TODAY FOR SELF BUILD MORTGAGE ADVICE!!
Floorplan for Shearwater House, The Willows, Marton

About Us

Starkey&Brown were formed in 2006, by David Starkey and Michael Brown.

Read More
About Us

Sales

Selling your most valuable asset can seem really daunting and you need to be sure that the agent you choose will do their best to achieve you the best possible sale price for your property.

Read More
Sales

Lettings

Finding a tenant for your property is only the beginning of being a Landlord.

Read More
Lettings

Register

Register for Property Updates

Register Here
Register

Valuation

How much is your property worth? Stop wondering and find out, with a property valuation from Starkey&Brown.

Book Here
Valuation

Awards

Awards Starkey&Brown.

Read More
Awards

Meet the Team

Meet the Team that keep Starkey&Brown moving.

Read More
Meet the Team

Contact Us

Contact us here and we can assist you further.

Contact Us
Contact Us