For Sale

Hereward Street, Uphill, Lincoln

Bed icon  6    Bath icon  3    receptions icon  1

£290,000

Save Saved
Contact Us

For further details on this property please call us

01522 845845


Book a Viewing

Features

  • House Of Multiple Occupancy
  • Recently Refurbished
  • 6 Bedrooms & 3 Shower Rooms
  • New Kitchen
  • Popular Uphill Location
  • Potential Income £30,000 pa
  • Close To Bishop Grosseteste University
  • Call Today To View

Summary

6 BED HMO!! 10.5% gross return!! Located within the popular uphill area and prime Bishop Grosseteste University and University of Lincoln student location is this fine example of a 6 bedroom, 3 shower room House of Multiple Occupancy on Hereward Street, with tenants in situ from September 2024, providing a healthy income of £30,345. The property has undergone a comprehensive scheme of improvement works and has accommodation which is arranged over four floors as follows: To the basement level there is a communal sitting room and a bedroom. On the ground floor there is a newly fitted kitchen with a door to the rear garden, bedroom and shower room. To the first floor there are 2 bedrooms and 2 shower rooms, and 2 further bedrooms to the second floor. The property also has a pleasant, low maintenance west facing garden. This HMO has a strong rental history over recent years and provides a gross return of 10.5% per annum. Call today to arrange a viewing! Council tax band: A. Freehold.

Full Details

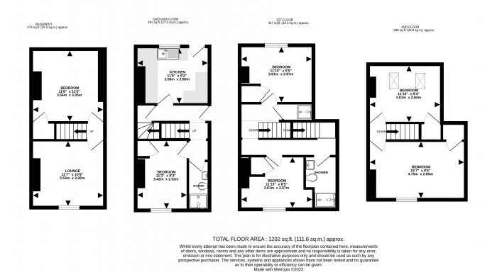
Basement Level

Sitting Room (11' 7'' x 10' 8'' (3.53m x 3.25m))

Having light well to front aspect and radiator.

Bedroom 1 (11' 8'' x 11' 0'' max (3.55m x 3.35m))

Having built-in wardrobe, fitted desk and radiator.

Ground Floor Level

Entrance Hallway

Having side entrance door, door with stairs leading down to basement and stairs rising to first floor.

Kitchen (11' 8'' max x 9' 2'' (3.55m x 2.79m))

Having a range of matching wall and base units, single drainer stainless steel sink unit with mixer taps over, tiled splash backs, built-in oven, hob and cooker hood, integral dishwasher, space for fridge freezer, plumbing for washing machine, laminate wood effect flooring, radiator, part tiled walls, central heating boiler and uPVC door to garden.

Bedroom 2 (11' 3'' x 8' 3'' max (3.43m x 2.51m))

Having built-in wardrobe, fitted desk and radiator.

Shower Room

Having 3 piece suite comprising tiled shower cubicle with electric shower appliance, wash hand basin set in vanity unit, low level WC, ceramic tiled floor, heated towel rail and extractor.

First Floor

First Floor Landing

Having stairs rising to second floor.

Bedroom 3 (11' 10'' max x 9' 5'' (3.60m x 2.87m))

Having built-in wardrobe, fitted desk and radiator.

Shower Room

Having shower cubicle with electric shower appliance, radiator, ceramic tiled floor and part tiled walls.

Bedroom 4 (11' 10'' max x 8' 5'' max (3.60m x 2.56m))

Having built-in wardrobe, fitted desk and radiator.

Shower Room

Having 3 piece suite comprising tiled shower cubicle with electric shower appliance, wall hung wash hand basin set in vanity unit, low level WC, ceramic tiled floor, fully tiled walls, heated towel rail and extractor.

Second Floor

Bedroom 5 (15' 7'' max x 9' 4'' (4.75m x 2.84m))

Having built-in wardrobe, fitted desk and radiator.

Bedroom 6 (11' 10'' max x 9' 4'' (3.60m x 2.84m))

Having built-in wardrobe, fitted desk, radiator and 2 Velux windows to rear aspect.

Outside Rear

To the rear of the property there is a generous sized west-facing garden comprising paved patio area, lawned garden and decking area.

Floorplan for Hereward Street, Uphill, Lincoln
EPC Graph for Hereward Street, Uphill, Lincoln

About Us

Starkey & Brown Sales & Lettings Agents were formed in 2006, by David Starkey and Michael Brown.

Read More
About Us

Sales

Selling your most valuable asset can seem really daunting and you need to be sure that the agent you choose will do their best to achieve you the best possible sale price for your property.

Read More
Sales

Lettings

Finding a tenant for your property is only the beginning of being a Landlord.

Read More
Lettings

Register

Register for Property Updates

Register Here
Register

Valuation

How much is your property worth? Stop wondering and find out, with a property valuation from Starkey & Brown Sales & Lettings Agents.

Book Here
Valuation

Awards

Awards Starkey & Brown Sales & Lettings Agents.

Read More
Awards

Meet the Team

Meet the Team that keep Starkey & Brown Sales & Lettings Agents moving.

Read More
Meet the Team

Contact Us

Contact us here and we can assist you further.

Contact Us
Contact Us