Let Agreed

Dunstall Street, Scunthorpe

Bed icon  1    Bath icon  1    receptions icon  1

Monthly Rental Of £600 PCM

Save Saved
Contact Us

For further details on this property please call us

01724 856100


Book a Viewing

Features

  • 3rd Floor Apartment
  • Open Plan Lounge/Kitchen
  • Shower Room
  • Balcony
  • Town Centre Location
  • EPC Band C
  • Council Tax Band A

Summary

This well presented third floor apartment has a double bedroom, open plan lounge/kitchen, shower room and balcony. Located within walking distance of the High Street in Scunthorpe Town Centre. Holding fee - £138, deposit - £692.

Full Details

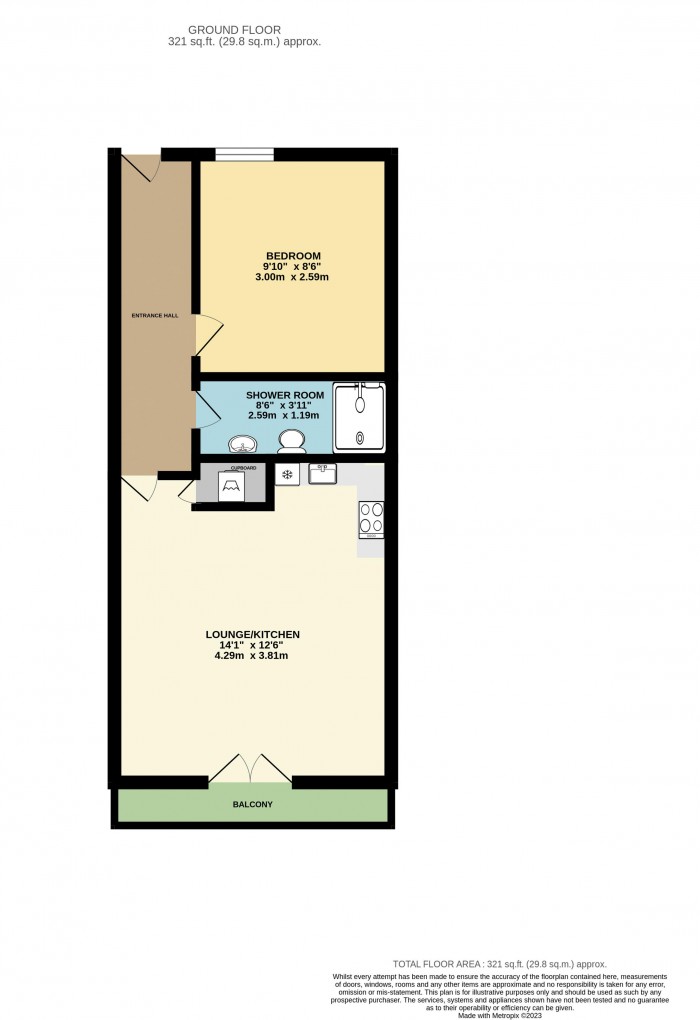
Entrance Hall

With front hardwood entrance, carpets, ceiling spotlights, wall mounted electric heater and mounted thermostat

Loung/Kitchen (14' 1'' x 12' 6'' (4.29m x 3.81m))

The lounge having uPVC double glazed door leading to balcony, ceiling spotlights, carpets, built in cupboard containing washing machine, electric wall mounted heater and hot water cylinder tank. The kitchen contains integral fridge freezer, wall and base units with counter tops, circular stainless steel sink with block mixer tap, built in electric oven with 4 ring electric hob, overhead extractor fan and tiled flooring.

Shower Room (3' 11'' x 8' 6'' (1.19m x 2.59m))

Having a double walk in shower cubicle with overhead mains controlled shower, tiled splash backs, tiled flooring, low level WC, pedestal wash hand basin, ceiling spotlights and mounted towel heater.

Bedroom (9' 10'' x 8' 6'' (2.99m x 2.59m))

Having uPVC double glazed window to the front elevation, carpets and wall mounted electric heater.

Floorplan for Dunstall Street, Scunthorpe

About Us

Starkey&Brown were formed in 2006, by David Starkey and Michael Brown.

Read More
About Us

Sales

Selling your most valuable asset can seem really daunting and you need to be sure that the agent you choose will do their best to achieve you the best possible sale price for your property.

Read More
Sales

Lettings

Finding a tenant for your property is only the beginning of being a Landlord.

Read More
Lettings

Register

Register for Property Updates

Register Here
Register

Valuation

How much is your property worth? Stop wondering and find out, with a property valuation from Starkey&Brown.

Book Here
Valuation

Awards

Awards Starkey&Brown.

Read More
Awards

Meet the Team

Meet the Team that keep Starkey&Brown moving.

Read More
Meet the Team

Contact Us

Contact us here and we can assist you further.

Contact Us
Contact Us