For Sale

Ravendale Drive, Lincoln

Bed icon  3    Bath icon  1    receptions icon  2

£279,000

Save Saved
Contact Us

For further details on this property please call us

01522 845845


Book a Viewing

Features

  • Detached Family Home
  • Well Presented Throughout
  • Walking Distance To Bailgate
  • 3 Generous Bedrooms
  • 19'6" Kitchen DIner
  • New Kitchen
  • Large Driveway & Garage
  • West-Facing Garden

Summary

Starkey&Brown are pleased to offer for sale this well presented detached family home, located on the northern outskirts of Lincoln, within walking distance of The Bailgate and within easy vehicular access of the A46 relief road. The property offers spacious accommodation which briefly comprises entrance hallway, 19'6 lounge diner, separate family/dining room, recently modernised kitchen, rear entrance lobby and downstairs WC. To the first floor there are three well proportioned bedrooms and a shower room. Outside the property has a driveway with space for several vehicles, brick built garage with useful adjoining outbuilding, and a west facing garden which offers an excellent degree of privacy. NO CHAIN! Council tax band: C. Freehold.

Full Details

Entrance Hallway

Having uPVC front entrance door, attractive vinyl flooring and stairs rising to first floor.

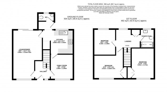
Lounge Diner (19' 6'' x 11' 7'' max (5.94m x 3.53m))

Having laminate wood effect flooring, radiator, coved ceiling and sliding patio door leading onto garden.

Family Room (9' 8'' x 8' 10'' (2.94m x 2.69m))

Having laminate wood effect flooring and radiator.

Kitchen (12' 1'' max x 9' 7'' (3.68m x 2.92m))

Having a recently modernised range of handless wall and base units, single drainer sink unit with mixer taps over and tiled splash backs, built-in oven, hob and cooker hood, integral dishwasher, integral washing machine, integral microwave oven, space for full height fridge freezer, ceramic tiled floor and radiator.

Rear Entrance Lobby

Having central heating boiler, ceramic tiled floor and uPVC door to garden.

Ground Floor WC

Having low level WC, corner wash hand basin with tiled splash backs, ceramic tiled floor and radiator.

First Floor Landing

Having airing cupboard housing hot water cylinder, radiator and access to loft.

Bedroom 1 (11' 10'' x 9' 0'' (3.60m x 2.74m))

Having built-in wardrobe and radiator.

Bedroom 2 (11' 6'' x 9' 3'' min (3.50m x 2.82m))

Having built-in wardrobe and radiator.

Bedroom 3 (10' 2'' x 8' 6'' (3.10m x 2.59m))

Having radiator.

Shower Room

Having 3 piece suite comprising large shower cubicle electric shower appliance, pedestal wash hand basin, low level WC, wood effect vinyl flooring, radiator and part tiled walls.

Outside Front

To the front of the property is a lawned garden area and a concrete driveway with space for several vehicles extending to side and garage, double wooden gates at side leading to rear garden.

Outside Rear

To the rear of the property is a fully enclosed west-facing garden being mainly laid to lawn with paved patio area, useful brick built outbuilding (8'10" x 4'3") (2.69m x 1.29m) and cold water tap.

Floorplan for Ravendale Drive, Lincoln
EPC Graph for Ravendale Drive, Lincoln

About Us

Starkey&Brown were formed in 2006, by David Starkey and Michael Brown.

Read More
About Us

Sales

Selling your most valuable asset can seem really daunting and you need to be sure that the agent you choose will do their best to achieve you the best possible sale price for your property.

Read More
Sales

Lettings

Finding a tenant for your property is only the beginning of being a Landlord.

Read More
Lettings

Register

Register for Property Updates

Register Here
Register

Valuation

How much is your property worth? Stop wondering and find out, with a property valuation from Starkey&Brown.

Book Here
Valuation

Awards

Awards Starkey&Brown.

Read More
Awards

Meet the Team

Meet the Team that keep Starkey&Brown moving.

Read More
Meet the Team

Contact Us

Contact us here and we can assist you further.

Contact Us
Contact Us