For Sale

Building Plot, Gray Lane, Witham St. Hughes, Lincoln

Bed icon  0    Bath icon  0    

Offers in the Region Of £115,000

Save Saved
Contact Us

For further details on this property please call us

01522 845845


Book a Viewing

Features

  • Superb Residential Building Plot in Popular Location
  • Fully Serviced Plot
  • Full Planning Permission Granted
  • NKDC Ref - 25/0163/FUL
  • Planning For Detached Bungalow
  • Large Gated Driveway
  • Adjacent Countryside Walks
  • Call Today For More Info!

Summary



FANTASTIC RESIDENTIAL BUILDING PLOT!

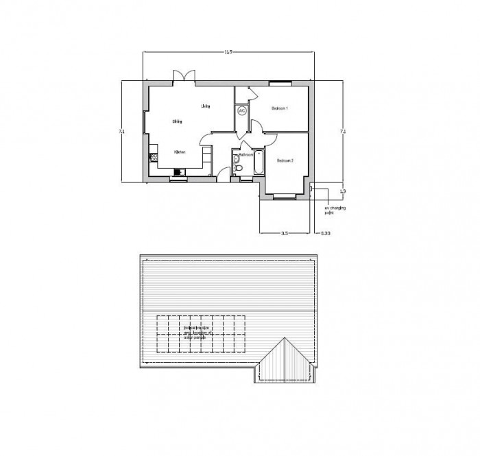
Starkey&Brown are pleased to offer for sale this generous building plot with full planning permission granted for a detached dwelling with its own private, gated entrance - beautifully positioned on the fringes of the ever popular Witham St Hugh's, with adjacent countryside walkways and bridle paths. With suitable services already in situ, the property once built will offer eco friendly and spacious accommodation which briefly comprises spacious entrance hallway, impressive open plan living space, two double bedrooms and bathroom. The property has also been designed so that there is ample space to create some 540 sq ft of accommodation to the first floor, subject to the necessary consents. Outside the property benefits from its own, gated driveway with space for several vehicles, ample space for a garage (subject to the necessary consents), EV charge point, solar panels and a generous garden to the rear. More information can be obtained by calling Starkey&Brown or visiting the NKDC planning portal, using the reference 25/0163/FUL.

Full Details

Agents Note

Service charges are payable for the maintenance of local communal areas and amounts to approximately £450 per year.

Floorplan for Building Plot, Gray Lane, Witham St. Hughes, Lincoln

About Us

Starkey & Brown Sales & Lettings Agents were formed in 2006, by David Starkey and Michael Brown.

Read More
About Us

Sales

Selling your most valuable asset can seem really daunting and you need to be sure that the agent you choose will do their best to achieve you the best possible sale price for your property.

Read More
Sales

Lettings

Finding a tenant for your property is only the beginning of being a Landlord.

Read More
Lettings

Register

Register for Property Updates

Register Here
Register

Valuation

How much is your property worth? Stop wondering and find out, with a property valuation from Starkey & Brown Sales & Lettings Agents.

Book Here
Valuation

Awards

Awards Starkey & Brown Sales & Lettings Agents.

Read More
Awards

Meet the Team

Meet the Team that keep Starkey & Brown Sales & Lettings Agents moving.

Read More
Meet the Team

Contact Us

Contact us here and we can assist you further.

Contact Us
Contact Us