Sold Subject to Contract

Whitefriars Road, Carlton Boulevard, Lincoln

Bed icon  4    Bath icon  2    receptions icon  2

£360,000

Save Saved
Contact Us

For further details on this property please call us

01522 845845


Book a Viewing

Features

  • Spacious Detached Family Home
  • Very Well Presented Throughout
  • Popular Residential Location
  • 4 Bedrooms, Master En-Suite
  • Impressive, Re-Modelled Kitchen
  • Large Driveway & Garage
  • South-East Facing Garden
  • Call Today To View!

Summary

Starkey&Brown are delighted to offer for sale this immaculate 4-bedroom detached family home. Constructed by Chartdale Homes in 2006, a property which has undergone a comprehensive scheme of renovations, internally and externally. Upon entering the property, you are welcomed by a spacious entrance hall which provides access to the living space over 2 floors. A ground-floor WC has been upgraded, and the whole of the ground floor is completed with underfloor heating. The lounge boasts luxury herringbone Amtico flooring and a feature gas fireplace with access onto the dining room, which continues the Amtico flooring, with underfloor heating. A garden room overlooks the rear garden and comes with 2 electric heaters and a fully insulated and covered solid roof. The remodelled kitchen comes with a top-of-the-range Magnet range of units with quartz worktops and integrated appliances such as a 5-ring induction hob, a double oven with a microwave, a Samsung dishwasher and an instant Quooker tap, and a utility room. Rising to the first floor are 4 generous bedrooms, with the master benefitting from a bespoke fitted wardrobe arrangement with feature inset lighting and custom motorised fitted blinds and a stylish en-suite shower room, and a further 3-piece family bathroom. To the rear of the property, there is an enclosed garden, which is non-overlooked and comes with a patio seating area and a large lawned area making it family-friendly, and a gate leading to further sloping garden area which offers the opportunity to further landscape. There is ample driveway parking with space for a minimum of 3 vehicles and access to a single garage. The property is surrounded by a wealth of local amenities, which include schooling at the 'Ofsted outstanding' Carlton Academy, Carlton Boulevard shopping complex, Glebe Park doctors' surgery, gym, and a range of national retailers. The property is also within walking distance of Lincoln County Hospital, The Bailgate area and Bishop Grosseteste University. To arrange a viewing, please contact Starkey&Brown. Council tax band: D. Freehold.

Full Details

Entrance Hall

Composite front door entry (fitted 2023), tiled floor, a uPVC double-glazed windows. Access to living accommodation and a downstairs WC.

Downstairs WC

Vanity unit, a low-level WC, a wash hand basin, and a Crittall-style heated towel rail. Consumer unit, a uPVC double-glazed obscure window to the front aspect.

Lounge (16' 3'' x 10' 8'' (4.95m x 3.25m))

Newly fitted gas fire with electric ignition (annual service from British Gas Home Serve), a uPVC double-glazed window to the front aspect, coved ceiling, a radiator, and luxury Amtico herringbone flooring with underfloor heating.

Dining Room (10' 8'' x 8' 8'' (3.25m x 2.64m))

Double entrance from the lounge. Luxury Amtico herringbone flooring with underfloor heating. Access to:

Garden Room (11' 8'' x 8' 6'' (3.55m x 2.59m))

Being of uPVC surround, brick construction and a solid roof (upgraded approximately 7 years ago), tiled flooring, fitted blinds, and 2 electric heaters. Double door entry to the rear garden.

Kitchen (15' 3'' max x 11' 11'' (4.64m x 3.63m))

Fitted with a modern Magnet kitchen, eye and base level units, and counter quartz worktops, top of the range appliances such as a double oven with a combination microwave, 5-ring induction hob and extractor hood, Samsung dishwasher, instant Quooker tap, freestanding kitchen island, an understairs storage cupboard, and underfloor heating. A uPVC double-glazed window to the rear aspect, a uPVC double-glazed window to the side aspect. Access to:

Utility Room (5' 7'' x 4' 11'' (1.70m x 1.50m))

Base and eye level units with space and plumbing for laundry appliances, a wall-mounted gas central heating boiler (With British Gas Home Serve annual service plan), external door to the side aspect.

First Floor Landing

Airing cupboard with a hot water cylinder, loft access - part boarded with a pull down ladder and insulation.

Master Bedroom (14' 0'' max x 11' 0'' max (4.26m x 3.35m))

Fitted carpets (approximately 2 years old), a uPVC double-glazed window to the front aspect with bespoke fitted blinds and bespoke built-in wardrobes with feature lighting. Access to:

En-Suite

Upgraded 4 years ago. With an aquaboard surround, a Crittall-style heated towel rail, a corner shower cubicle, uPVC cladding to the ceiling, a uPVC double-glazed obscured window to the front aspect and a vanity hand wash basin unit, and a low-level WC.

Bedroom 2 (14' 2'' min x 8' 11'' (4.31m x 2.72m))

Having a uPVC double-glazed window to the front aspect with a bespoke motorised blind, a radiator, and space for a wardrobe.

Bedroom 3 (11' 2'' max x 8' 4'' max (3.40m x 2.54m))

Having a uPVC double-glazed window to the rear aspect, a radiator, space for a wardrobe, and a bespoke fitted motorised blind.

Bedroom 4 (11' 0'' max x 7' 8'' min (3.35m x 2.34m))

Having a uPVC double-glazed window to the rear aspect, and a radiator.

Bathroom

Bath tub with whirlpool jets and a rainfall shower over, aquaboard finish, extractor unit, uPVC cladding to the ceiling, and a Crittall-style heated towel rail.

Outside Rear

Mostly laid to lawn with patio seating area. A gate leads to a further sloping garden area, which offers the opportunity to further landscape with an additional patio/decking area.

Outside Front

Block paved driveway parking extending to the side of the property with space for several vehicles, pathway and storm porch leading to the front door entrance, secure gate at side leading to rear garden.

Garage

Having an up-and-over door, power, and lighting. A recently fitted water softener, which is fitted to the mains water outlet, personnel door, and a uPVC double-glazed window to the side aspect.

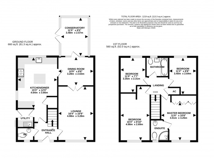
Floorplan for Whitefriars Road, Carlton Boulevard, Lincoln
EPC Graph for Whitefriars Road, Carlton Boulevard, Lincoln

About Us

Starkey & Brown Sales & Lettings Agents were formed in 2006, by David Starkey and Michael Brown.

Read More
About Us

Sales

Selling your most valuable asset can seem really daunting and you need to be sure that the agent you choose will do their best to achieve you the best possible sale price for your property.

Read More
Sales

Lettings

Finding a tenant for your property is only the beginning of being a Landlord.

Read More
Lettings

Register

Register for Property Updates

Register Here
Register

Valuation

How much is your property worth? Stop wondering and find out, with a property valuation from Starkey & Brown Sales & Lettings Agents.

Book Here
Valuation

Awards

Awards Starkey & Brown Sales & Lettings Agents.

Read More
Awards

Meet the Team

Meet the Team that keep Starkey & Brown Sales & Lettings Agents moving.

Read More
Meet the Team

Contact Us

Contact us here and we can assist you further.

Contact Us
Contact Us