Sold Subject to Contract

Kirk Road, Branston, Lincoln

Bed icon  3    Bath icon  2    receptions icon  1

£260,000

Save Saved
Contact Us

For further details on this property please call us

01522 845845


Book a Viewing

Features

  • Detached Former Show Home
  • Immaculately Presented Throughout
  • 3 Good Size bedrooms, Master En-Suite
  • 14'0" Lounge & 15'5" Kitchen Diner
  • Block Paved Driveway
  • Larger Than Average Garage
  • Pleasant, South-West Facing Garden
  • Viewing Highly Recommended!

Summary

Starkey&Brown is pleased to offer for sale this immaculately presented, former show home property located on the outskirts of this popular residential development within the village of Branston. Accommodation briefly comprises an entrance hallway, 14'0" lounge, 15'5" kitchen diner with French doors overlooking the rear garden, a ground floor WC, first floor landing, 3 well proportioned bedrooms, en-suite shower room to the master bedroom and a separate family bathroom. Outside the property benefits from a generous block paved driveway, a larger than average brick built garage and a fully enclosed south-west facing garden which offers an excellent degree of privacy. Call today to view! Council tax band: C. Freehold.

Full Details

Entrance Hallway

Having a front entrance door, wood-effect luxury vinyl flooring, a radiator, and stairs rising to the first floor.

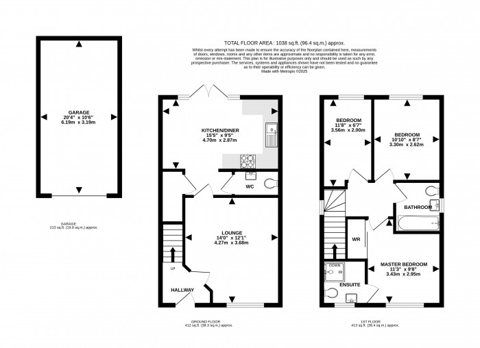
Lounge (14' 0'' max x 12' 1'' max (4.26m x 3.68m))

Having wood-effect luxury vinyl flooring and a radiator.

Kitchen Diner (15' 5'' x 9' 5'' min (4.70m x 2.87m))

Having a range of matching wall and base units, single drainer stainless steel sink unit with mixer taps over, built-in oven, hob and cooker hood, integral full height fridge freezer, integral dishwasher, integral washing machine, wood effect luxury vinyl flooring, a radiator, an understairs storage cupboard and concealed Ideal condensing central heating boiler (serviced annually).

Ground Floor WC

Having a low-level WC, pedestal hand wash basin, wood effect luxury vinyl flooring, a radiator, part tiled walls, LED downlights, and an extractor.

First Floor Landing

Having a radiator and access to loft.

Masted Bedroom (11' 3'' max x 9' 8'' (3.43m x 2.94m))

Having fitted sliding door mirrored wardrobes and a radiator.

En-Suite

Having a 3-piece suite comprising a tiled shower cubicle with a glass shower door, a pedestal wash hand basin, a low-level WC, a ceramic tiled floor, fully tiled walls, LED downlights, and an extractor.

Bedroom 2 (10' 10'' x 8' 7'' (3.30m x 2.61m))

Having fitted sliding door mirrored wardrobe and a radiator.

Bedroom 3 (11' 8'' max x 6' 7'' (3.55m x 2.01m))

Having a radiator.

Bathroom

Having a 3-piece suite comprising panelled bath with mains-fed shower and glass shower screen over, a pedestal wash hand basin, a low-level WC, ceramic tiled floor, a heated towel rail, part tiled walls, LED downlight, and an extractor.

Outside Front

To the front of the property, there is a low-maintenance front garden with outside lighting, a storm canopy leading to the front entrance door. Block paved riveway with space for at least 2 vehicles extending to the side and garage. Gate at the side leading to the rear garden.

Garage (20' 4'' x 10' 6'' (6.19m x 3.20m))

Being typically larger than the average single garage and having an up-and-over door, power, and light. Pitched roof providing storage space.

Outside Rear

To the rear of the property, there is a fully enclosed south-west facing garden offering an excellent degree of privacy. Being mainly laid to lawn with a paved patio area, slate bed seating area with a pergola over. Additional paved patio/slate garden area to the rear of the garage with space and electric for a hot tub.

Agents Note

We are advised by the sellers that service charges are payable for the maintenance of local communal areas and amount to £197.72 per annum. Please call for further information.

Floorplan for Kirk Road, Branston, Lincoln
EPC Graph for Kirk Road, Branston, Lincoln

About Us

Starkey & Brown Sales & Lettings Agents were formed in 2006, by David Starkey and Michael Brown.

Read More
About Us

Sales

Selling your most valuable asset can seem really daunting and you need to be sure that the agent you choose will do their best to achieve you the best possible sale price for your property.

Read More
Sales

Lettings

Finding a tenant for your property is only the beginning of being a Landlord.

Read More
Lettings

Register

Register for Property Updates

Register Here
Register

Valuation

How much is your property worth? Stop wondering and find out, with a property valuation from Starkey & Brown Sales & Lettings Agents.

Book Here
Valuation

Awards

Awards Starkey & Brown Sales & Lettings Agents.

Read More
Awards

Meet the Team

Meet the Team that keep Starkey & Brown Sales & Lettings Agents moving.

Read More
Meet the Team

Contact Us

Contact us here and we can assist you further.

Contact Us
Contact Us