Sold Subject to Contract

Foxglove, Station Road, Potterhanworth

Bed icon  2    Bath icon  1    receptions icon  1

£171,500

Save Saved
Contact Us

For further details on this property please call us

01522 845845


Book a Viewing

Features

  • 70% market value
  • NKDC first homes scheme
  • Newly built semi detached house
  • Two double bedrooms
  • Picturesque village location
  • Driveway Parking
  • Rear Garden
  • Eligibility and affordability criteria applies

Summary

NKDC FIRST HOMES SCHEME! 70% MARKET VALUE!

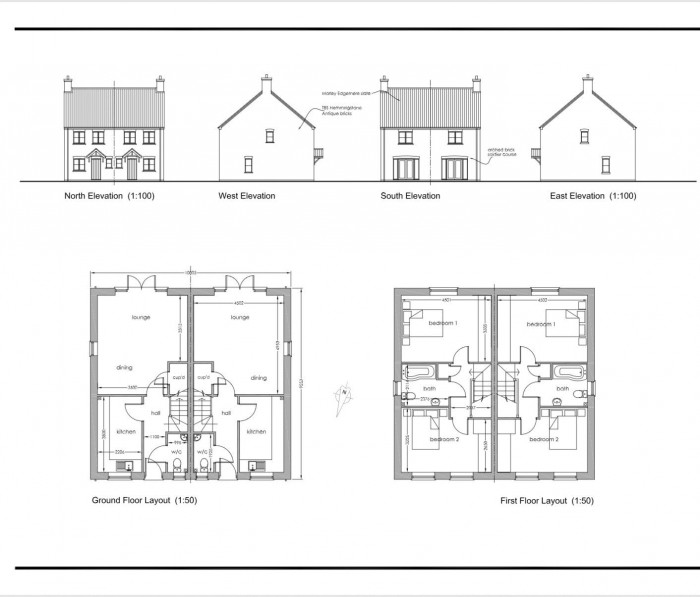
Located in the picturesque village of Potterhanworth is this semi detached starter home which has been built by award winning Lincolnshire builder Riva Construction Ltd and being offered for sale as part of the NKDC 'first homes' scheme - offering an opportunity for local first time buyers. Accommodation briefly comprises entrance hallway, ground floor wc, lounge with french doors overlooking the garden and kitchen. To the first floor there are two double bedrooms and a bathroom. Outside the property offers generous garden and parking facilities. The asking price of £171,500 represents 70% of the current market value of £245,000. Buyers will be chosen based on strict eligibility and affordability criteria, please call for further information.

Full Details

Agents note

First Homes is a new tenure of affordable housing which offers properties for sale with a discount of 30% on the market value to first time buyers. The discount will be on the property in perpetuity and so the property will remain as a First Home through subsequent sales.

Agents note

Prospective purchasers will need to have their eligibility to purchase confirmed and approved by NKDC Housing Strategy before they can proceed – and will be assessed/prioritised on the strength of their location connection to Potterhanworth and adjoining wards. They must also secure a statement from a financial advisor confirming that they are in need of the discount. The purchaser must also be buying the dwelling to be their home and not for investment/rental purposes. Further information can be obtained by contacting housingstrategy@n-kesteven.gov.uk

Floorplan for Foxglove, Station Road, Potterhanworth

About Us

Starkey & Brown Sales & Lettings Agents were formed in 2006, by David Starkey and Michael Brown.

Read More
About Us

Sales

Selling your most valuable asset can seem really daunting and you need to be sure that the agent you choose will do their best to achieve you the best possible sale price for your property.

Read More
Sales

Lettings

Finding a tenant for your property is only the beginning of being a Landlord.

Read More
Lettings

Register

Register for Property Updates

Register Here
Register

Valuation

How much is your property worth? Stop wondering and find out, with a property valuation from Starkey & Brown Sales & Lettings Agents.

Book Here
Valuation

Awards

Awards Starkey & Brown Sales & Lettings Agents.

Read More
Awards

Meet the Team

Meet the Team that keep Starkey & Brown Sales & Lettings Agents moving.

Read More
Meet the Team

Contact Us

Contact us here and we can assist you further.

Contact Us
Contact Us