Sold Subject to Contract

Plot 111, The Agate Plus, Langton Rise, Horncastle, LN9 5FJ

Bed icon  3    Bath icon  2    receptions icon  1

£249,950

Save Saved
Contact Us

For further details on this property please call us

01522 845845


Book a Viewing

Features

  • NEW RELEASE!
  • 5% GIFTED DEPOSIT INCLUDED!
  • BEAUTIFUL 3 BEDROOM SEMI DETACHED HOME
  • UPGRADED BATHROOM INCLUDED!
  • FLOOR TILING TO HALLWAY & CLOAKROOM INCLUDED!
  • BRICK GARAGE & BLOCK PAVED DRIVEWAY
  • POPULAR LOCATION OF HORNCASTLE

Summary

*** FINAL PHASE NOW RELEASED *** Starkey & Brown are delighted to present this beautifully presented three-bedroom home on Langton Rise, built by the highly regarded Lincolnshire developers, Cyden Homes.


This spacious family property offers well-planned accommodation throughout and briefly comprises:




  • A welcoming entrance hallway with ground floor WC




  • A bright and comfortable lounge




  • An impressive open-plan kitchen diner with French doors opening onto the rear garden




Upstairs, the property features three generously sized bedrooms, including a master bedroom with en-suite, along with a stylish family bathroom fitted with a contemporary three-piece suite.


Externally, the home benefits from a block-paved driveway, garage, and a fully enclosed rear garden – perfect for family living and entertaining.


Fantastic incentives available – don’t miss out!


Call today for more information!! EPC Grade B.
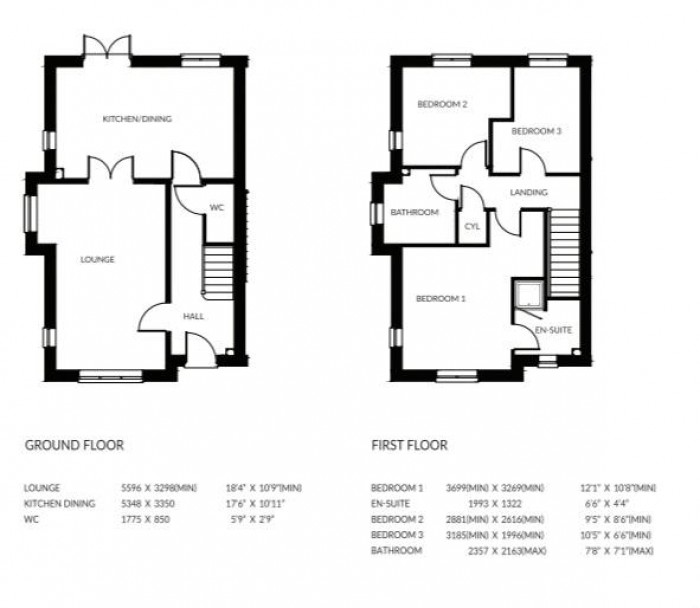
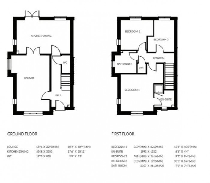
Floorplan for Plot 111, The Agate Plus, Langton Rise, Horncastle, LN9 5FJ
EPC Graph for Plot 111, The Agate Plus, Langton Rise, Horncastle, LN9 5FJ

About Us

Starkey & Brown Sales & Lettings Agents were formed in 2006, by David Starkey and Michael Brown.

Read More
About Us

Sales

Selling your most valuable asset can seem really daunting and you need to be sure that the agent you choose will do their best to achieve you the best possible sale price for your property.

Read More
Sales

Lettings

Finding a tenant for your property is only the beginning of being a Landlord.

Read More
Lettings

Register

Register for Property Updates

Register Here
Register

Valuation

How much is your property worth? Stop wondering and find out, with a property valuation from Starkey & Brown Sales & Lettings Agents.

Book Here
Valuation

Awards

Awards Starkey & Brown Sales & Lettings Agents.

Read More
Awards

Meet the Team

Meet the Team that keep Starkey & Brown Sales & Lettings Agents moving.

Read More
Meet the Team

Contact Us

Contact us here and we can assist you further.

Contact Us
Contact Us