Sold Subject to Contract

Plot 94, The Jasper, Langton Rise, Horncastle, Lincoln

Bed icon  4    Bath icon  2    receptions icon  2

£319,950

Save Saved
Contact Us

For further details on this property please call us

01522 845845


Book a Viewing

Features

  • NEW PRICE!
  • FLOOR TILING TO KITCHEN & DINING ROOM INCLUDED!
  • FLOOR TILING TO HALLWAY & CLOAKROOM INCLUDED!
  • FLOOR TILING TO SUNROOM INCLUDED!
  • SUNROOM/SECOND LOUNGE
  • UTILITY ROOM & STUDY
  • GARAGE & BLOCK PAVED DRIVEWAY
  • WESTERLY FACING GARDEN

Summary

* FINAL PHASE NOW RELEASED* Starkey&Brown are delighted to present this charming four-bedroom detached home on Langton Rise, built by the reputable Lincolnshire developers, Cyden Homes. Offering spacious and thoughtfully designed accommodation throughout, this property is ideal for modern family living.


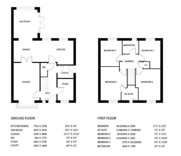
The ground floor features an inviting entrance hallway with a convenient ground floor WC and a versatile study, perfect for working from home. The lounge is bright and welcoming, boasting a large bay window and French doors that open onto the stunning kitchen-diner — a perfect space for entertaining and family gatherings. Beyond the kitchen, a light-filled sunroom provides additional living space with French doors leading directly onto the private rear garden, while a separate utility room adds practicality.


Upstairs, the home continues to impress with four generously proportioned bedrooms, including a stylish en-suite shower room to bedroom one, alongside a contemporary family bathroom.


Externally, the property offers a block-paved driveway with space for at least two vehicles, a garage, and a fully enclosed rear garden, providing both security and privacy.


This delightful home combines quality, style, and practicality, making it an excellent choice for growing families looking for a comfortable and elegant home in a desirable location.



Contact Starkey&Brown for for further details!

Floorplan for Plot 94, The Jasper, Langton Rise, Horncastle, Lincoln

About Us

Starkey & Brown Sales & Lettings Agents were formed in 2006, by David Starkey and Michael Brown.

Read More
About Us

Sales

Selling your most valuable asset can seem really daunting and you need to be sure that the agent you choose will do their best to achieve you the best possible sale price for your property.

Read More
Sales

Lettings

Finding a tenant for your property is only the beginning of being a Landlord.

Read More
Lettings

Register

Register for Property Updates

Register Here
Register

Valuation

How much is your property worth? Stop wondering and find out, with a property valuation from Starkey & Brown Sales & Lettings Agents.

Book Here
Valuation

Awards

Awards Starkey & Brown Sales & Lettings Agents.

Read More
Awards

Meet the Team

Meet the Team that keep Starkey & Brown Sales & Lettings Agents moving.

Read More
Meet the Team

Contact Us

Contact us here and we can assist you further.

Contact Us
Contact Us