Sold Subject to Contract

Cross Street, Lincoln

Bed icon  2    Bath icon  1    receptions icon  2

£95,000

Save Saved
Contact Us

For further details on this property please call us

01522 845845


Book a Viewing

Features

  • Terraced House
  • Excellent Potential
  • Full Modernisation Required
  • 2 Bedrooms & Box Room
  • Potential En-Suite Bathroom
  • I8'0" max Kitchen Diner
  • Ideal Investment Property
  • NO CHAIN

Summary

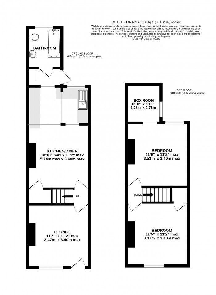
ATTENTION INVESTORS! Being offered for sale with no onward chain is this terraced house on Cross Street. The property requires a full scheme of modernisation, however offers excellent potential with accommodation briefly comprising a lounge, 18'10 kitchen diner, rear lobby, ground floor bathroom, two double bedrooms, and an additional box room which offers potential for an ensuite bathroom to the main bedroom. The property also has an enclosed rear courtyard garden. NO CHAIN!! Council tax band: Freehold.
Floorplan for Cross Street, Lincoln
EPC Graph for Cross Street, Lincoln

About Us

Starkey & Brown Sales & Lettings Agents were formed in 2006, by David Starkey and Michael Brown.

Read More
About Us

Sales

Selling your most valuable asset can seem really daunting and you need to be sure that the agent you choose will do their best to achieve you the best possible sale price for your property.

Read More
Sales

Lettings

Finding a tenant for your property is only the beginning of being a Landlord.

Read More
Lettings

Register

Register for Property Updates

Register Here
Register

Valuation

How much is your property worth? Stop wondering and find out, with a property valuation from Starkey & Brown Sales & Lettings Agents.

Book Here
Valuation

Awards

Awards Starkey & Brown Sales & Lettings Agents.

Read More
Awards

Meet the Team

Meet the Team that keep Starkey & Brown Sales & Lettings Agents moving.

Read More
Meet the Team

Contact Us

Contact us here and we can assist you further.

Contact Us
Contact Us