To Let

Ropery Road, Gainsborough

Bed icon  2    Bath icon  1    receptions icon  1

Monthly Rental Of £750 PCM

Save Saved
Contact Us

For further details on this property please call us

01522 845845


Book a Viewing

Features

  • Fully Refurbished Victorian Property
  • Brand New Fitted Kitchen with Full Size Integrated Appliances
  • Two Bedrooms
  • Front & Rear Gardens
  • Rear Garden Gated Access
  • On Street Parking

Summary



Starkey&Brown are pleased to offer for let this beautifully fully refurbished Victorian property. Offering stylish, modern living and finished to a high standard throughout, this low energy home is ideal for tenants seeking quality, space, and convenience. The property features a brand new fitted kitchen complete with full-size integrated appliances, providing a sleek and practical cooking space. Two well-proportioned bedrooms offer comfortable accommodation, while the layout is bright and welcoming throughout.    Externally, the home benefits from both front and rear gardens, with the rear garden offering an attached outhouse with power supply, plus gated access that is ideal for added security and ease of use. On-street parking is available to the front of the property.  


Council Tax Band: A,  EPC Rating: D, Holding Fee:  £173,  Deposit:   £865.

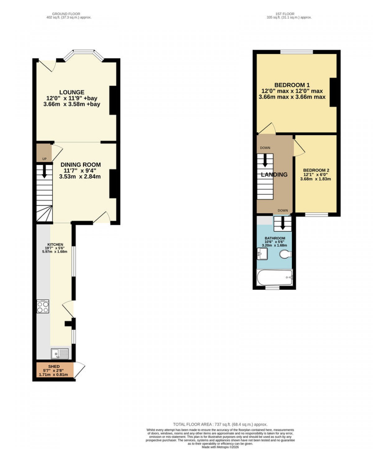
Floorplan for Ropery Road, Gainsborough

About Us

Starkey & Brown Sales & Lettings Agents were formed in 2006, by David Starkey and Michael Brown.

Read More
About Us

Sales

Selling your most valuable asset can seem really daunting and you need to be sure that the agent you choose will do their best to achieve you the best possible sale price for your property.

Read More
Sales

Lettings

Finding a tenant for your property is only the beginning of being a Landlord.

Read More
Lettings

Register

Register for Property Updates

Register Here
Register

Valuation

How much is your property worth? Stop wondering and find out, with a property valuation from Starkey & Brown Sales & Lettings Agents.

Book Here
Valuation

Awards

Awards Starkey & Brown Sales & Lettings Agents.

Read More
Awards

Meet the Team

Meet the Team that keep Starkey & Brown Sales & Lettings Agents moving.

Read More
Meet the Team

Contact Us

Contact us here and we can assist you further.

Contact Us
Contact Us