For Sale

Foster Street, Lincoln

Bed icon  2    Bath icon  2    receptions icon  2

£160,000

Save Saved
Contact Us

For further details on this property please call us

01522 845845


Book a Viewing

Features

  • ATTENTION INVESTORS!
  • Excellent Investment Opportunity
  • Gross Income £17,760 Per Annum
  • 11.1% Gross Return
  • Two Bedrooms & Two Bathrooms
  • Very Well Presented Throughout
  • Spacious Communal Areas
  • Call Today To View!

Summary

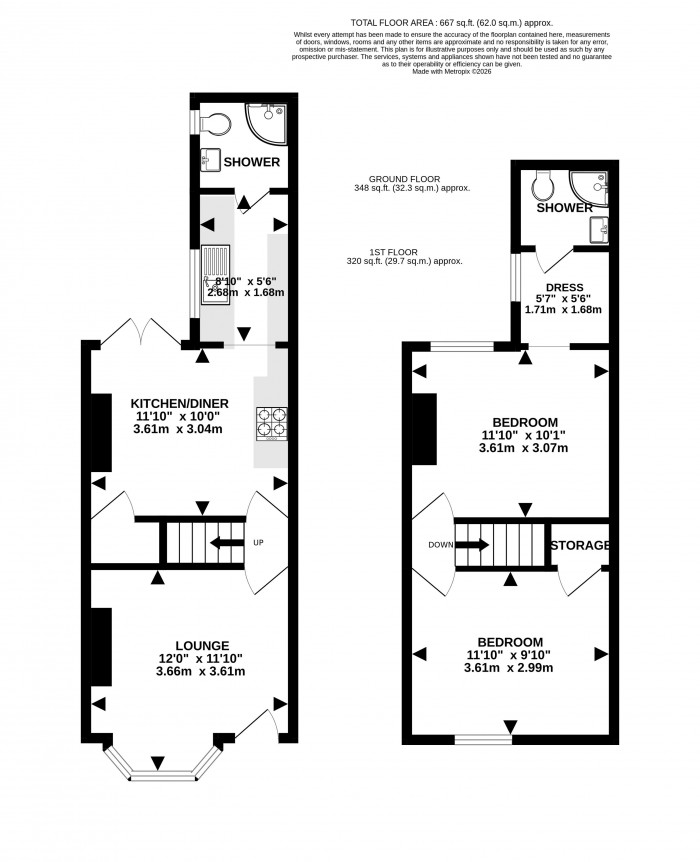
ATTENTION INVESTORS! 11.1% GROSS RETURN! Located just off Lincoln High Street, this very well-presented investment property is within easy walking distance of the city centre and the University of Lincoln. The property is currently rented and generates a gross annual income of £17,760, which represents an impressive 11.1% gross return. Accommodation briefly comprises a bay-fronted lounge, an open-plan kitchen and dining room, two double bedrooms and two shower rooms - one to the ground floor and an ensuite to the main bedroom. Call today for more information! Council tax band: A. Freehold.

Full Details

Lounge (12' 0'' into bay x 11' 10'' max (3.65m x 3.60m))

Having a uPVC front entrance door, a walk-in bay window to the front aspect, a radiator, and LED downlights.

Inner Lobby

Having stairs rising to the first floor.

Kitchen Diner

Having a modern range of matching wall and base units, a single drainer stainless steel sink unit with mixer taps over, built-in oven, hob and cooker hood, plumbing for a washing machine, space for a tumble dryer, wood effect vinyl flooring, 2 radiators, an Ideal central heating boiler, LED downlights and French doors leading onto the rear garden.

Shower Room

Having a three-piece suite comprising a corner shower cubicle with mains-fed shower, a wash hand basin set in a vanity unit, a low-level WC, wood-effect vinyl flooring, a heated towel rail, and an extractor.

Bedroom 1 (11' 10'' max x 10' 1'' (3.60m x 3.07m))

Having a radiator, LED downlights and a large walk-in wardrobe/dressing area with a door leading into:

En-Suite

Having a three-piece suite comprising a corner tiled shower cubicle with mains-fed shower, a wash hand basin set in a vanity unit, a low-level WC, wood-effect vinyl flooring, a heated towel rail, and an extractor.

Bedroom 2 (11' 10'' x 9' 9'' (3.60m x 2.97m))

Having a built-in wardrobe and a radiator.

Outside Rear

To the rear of the property, there is an enclosed courtyard garden

Floorplan for Foster Street, Lincoln
EPC Graph for Foster Street, Lincoln

About Us

Starkey & Brown Sales & Lettings Agents were formed in 2006, by David Starkey and Michael Brown.

Read More
About Us

Sales

Selling your most valuable asset can seem really daunting and you need to be sure that the agent you choose will do their best to achieve you the best possible sale price for your property.

Read More
Sales

Lettings

Finding a tenant for your property is only the beginning of being a Landlord.

Read More
Lettings

Register

Register for Property Updates

Register Here
Register

Valuation

How much is your property worth? Stop wondering and find out, with a property valuation from Starkey & Brown Sales & Lettings Agents.

Book Here
Valuation

Awards

Awards Starkey & Brown Sales & Lettings Agents.

Read More
Awards

Meet the Team

Meet the Team that keep Starkey & Brown Sales & Lettings Agents moving.

Read More
Meet the Team

Contact Us

Contact us here and we can assist you further.

Contact Us
Contact Us