For Sale

Village Farm Drive, Sturton By Stow, Lincoln

Bed icon  4    Bath icon  2    receptions icon  3

£395,000

Save Saved
Contact Us

For further details on this property please call us

01522 845845


Book a Viewing

Features

  • Substantial, Well Maintained Bungalow
  • Popular Village Location
  • Approx 1763 Sq. Ft (including garage)
  • Versatile Accommodation
  • Four Bedrooms, Master En-Suite
  • Driveway & Double Garage
  • Walled, Private Garden
  • NO CHAIN!

Summary

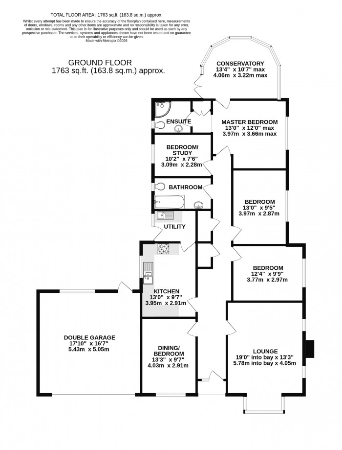
Starkey&Brown are delighted to offer for sale this substantial and very well maintained bungalow, located within the popular village of Sturton by Stow. The accommodation spans approximately 1,763 sq. ft (including the garage) and offers versatile living space on an impressive walled plot that offers a high degree of privacy. Accommodation briefly comprises spacious entrance hallway 19' max lounge with bay window and wood burner fireplace, separate dining room (potential office or snug), conservatory which leads off the master bedroom, 13' kitchen, utility, four well proportioned bedrooms (bedroom 4 suitable as a study), with ensuite to the master bedroom and a separate bathroom. Outside the property benefits from a block paved driveway with comfortable parking space for three cars, a double garage, and a generous established garden predominantly enclosed by brick wall and not directly overlooked. The property is being offered for sale with NO CHAIN, call today to view! Council tax band: D. Freehold.

Full Details

Entrance Hallway

Having a part-glazed composite front entrance door, two radiators, a coved ceiling, a large cloak cupboard, a large airing cupboard housing a hot water cylinder, access to a part boarded loft with a loft ladder and lighting.

Lounge (19' 0'' into bay x 13' 2'' (5.79m x 4.01m))

Having a large walk-in bay window to the front aspect, a feature cast-iron log burner fireplace with tiled hearth and wooden surround, two radiators, and a coved ceiling.

Dining Room/Bedroom (13' 3'' x 9' 7'' (4.04m x 2.92m))

Having a radiator and a coved ceiling.

Kitchen (13' 0'' x 9' 7'' (3.96m x 2.92m))

Having a range of matching wall and base units, corner display shelving, one and a half bowl single drainer stainless steel sink unit with mixer tap over and tiled splash backs, built-in oven, hob and a cooker hood, plumbing for a dishwasher, wood effect vinyl flooring and a radiator.

Utility (7' 5'' x 5' 7'' (2.26m x 1.70m))

Having a single drainer stainless steel sink unit with tiled splash backs and base unit beneath, plumbing for a washing machine, space for a fridge freezer, wood-effect vinyl flooring, a radiator, and a uPVC door leading to the garden.

Master Bedroom (13' 0'' max x 12' 0'' max (3.96m x 3.65m))

Having a box bow window to the side aspect, a range of fitted wardrobes with matching bedside cabinets and a bridging unit, a radiator, and a heated towel rail. Door leading into conservatory.

En-Suite

Having a three-piece suite comprising a corner shower cubicle with mains-fed rainfall shower and additional handheld shower, a wash hand basin set in a vanity unit, a low-level WC, a ceramic tiled floor, a heated towel rail, downlights, and an extractor.

Conservatory (13' 4'' x 10' 7'' max (4.06m x 3.22m))

Being of uPVC construction with a brick base and ceramic tiled floor, wall light, and French doors onto the garden.

Bedroom 2 (13' 0'' x 9' 5'' (3.96m x 2.87m))

Having a radiator.

Bedroom 3 (12' 4'' x 9' 9'' (3.76m x 2.97m))

Having a radiator.

Bedroom 4 (10' 2'' x 7' 6'' (3.10m x 2.28m))

Having a radiator.

Bathroom

Having being refurbished approxiamtyl 2021. Having a three-piece suite comprising a panelled bath with mains-fed rainfall shower and additional handheld shower over, a wash hand basin set in a vanity unit, a low-level WC, a ceramic tiled floor, a heated towel rail, fully tiled walls, downlights, and an extractor.

Outside Front

To the front of the property, there is a lawned garden area with outside lighting, a triple-width block-paved driveway giving access to a double garage, storm porch leading to the front entrance door. Double wooden gates at the side leading to the rear garden.

Double Garage (17' 10'' x 16' 7'' (5.43m x 5.05m))

Having a remote control roller shutter door, power and light, a wall-mounted Ideal central heating boiler, access to the roof space, a window overlooking the garden, and a door leading to the garden.

Outside Rear

To the rear of the property there is an established and generous sized garden which offers an excellent degree of privacy, being predominatly enclosed by a brick wall and being mainly laid to lawn with a wide variety of flowers, plants and shurbs, large patio area, additional block paved patio area with pergola over, green house, outside lighting and a cold water tap.

Floorplan for Village Farm Drive, Sturton By Stow, Lincoln
EPC Graph for Village Farm Drive, Sturton By Stow, Lincoln

About Us

Starkey & Brown Sales & Lettings Agents were formed in 2006, by David Starkey and Michael Brown.

Read More
About Us

Sales

Selling your most valuable asset can seem really daunting and you need to be sure that the agent you choose will do their best to achieve you the best possible sale price for your property.

Read More
Sales

Lettings

Finding a tenant for your property is only the beginning of being a Landlord.

Read More
Lettings

Register

Register for Property Updates

Register Here
Register

Valuation

How much is your property worth? Stop wondering and find out, with a property valuation from Starkey & Brown Sales & Lettings Agents.

Book Here
Valuation

Awards

Awards Starkey & Brown Sales & Lettings Agents.

Read More
Awards

Meet the Team

Meet the Team that keep Starkey & Brown Sales & Lettings Agents moving.

Read More
Meet the Team

Contact Us

Contact us here and we can assist you further.

Contact Us
Contact Us