Sold Subject to Contract

Grange Lane South, Scunthorpe

Bed icon  3    Bath icon  1    receptions icon  2

£152,500

Save Saved
Contact Us

For further details on this property please call us

01724 856100


Book a Viewing

Features

  • Semi Detached House
  • Beautifully Modernised
  • 3 Bedrooms & Luxury Shower Room
  • Impressive Open Plan Living
  • Perfect 1st Home or Investment
  • Fully enclosed Rear Garden
  • Off Road Parking
  • NO CHAIN!

Summary


Starkey&Brown are pleased to offer for sale this beautifully presented semi-detached standing upon a generous sized corner plot. Over the recent years the property has benefited from a comprehensive scheme of improvement works and offers impressive accommodation which briefly comprises of entrance hallway, open plan lounge, dining and kitchen area, utility, ground floor WC. Rising to the first floor having 3 good sized bedrooms and luxury shower room. Outside the property offers a generous sized frontage with parking space for several vehicles and a fully enclosed garden to the rear. NO CHAIN! Freehold. Council tax band A.

Full Details

Entrance Hallway

Having part glazed uPVC front entrance door, wood effect ceramic tiled floor, radiator and stairs rising to the first floor.

Lounge (14' 2'' x 14' 0'' (4.31m x 4.26m))

Having walk in bay window to the front aspect, attractive herringbone wooden flooring, radiator and LED downlights.

Dining Area (12' 0'' x 10' 11'' (3.65m x 3.32m))

Having central island unit with marble effect work surfacing and breakfast bar, a range of larder units, integral full height fridge/freezer, attractive herringbone wood flooring, radiator and LED downlights.

Kitchen (8' 6'' x 6' 0'' (2.59m x 1.83m))

Having a range of matching wall and base units, marble effect work surfacing with matching upstands, sink unit with mixer taps over, built in oven, hob and cooker hood over and integral dishwasher.

Utility room

Having space and plumbing for washing machine with work surfacing over, wood effect ceramic tile flooring.

Downstairs W/C

Having low level WC with concealed system, tiled walls and flooring.

First Floor Landing

Having attractive herringbone wooden flooring and LED downlights.

Bedroom 1 (12' 4'' x 10' 10'' (3.76m x 3.30m))

Having attractive herringbone wooden floor, radiator and LED downlights.

Bedroom 2 (12' 0'' x 10' 10'' (3.65m x 3.30m))

Having attractive herringbone flooring, radiator and LED downlights.

Bedroom 3 (8' 2'' x 6' 2'' (2.49m x 1.88m))

Currently being used as a dressing room. Having attractive herringbone flooring, fitted hanging rails, radiator, LED downlights and access to insulated and part boarded loft with ladder, lighting and central heating boiler (installed approx 2021)

Outside Front

Having a generous frontage being mainly laid to lawn and offering space for multiple parking spaces if required, secure gate at side leading to rear garden.

Outside Rear

Having a fully enclosed rear garden with raised timber decking/outdoor seating area and large garden shed.

Agents Notes

The energy rating for this property is a D. However since the EPC was produced the property has been benefited energy efficient improvements and therefore a new EPC would liked show an improved rating.

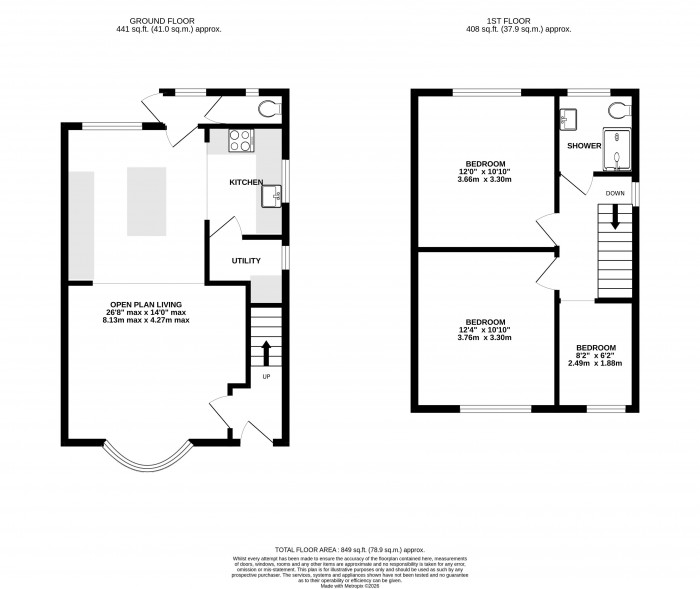
Floorplan for Grange Lane South, Scunthorpe

About Us

Starkey & Brown Sales & Lettings Agents were formed in 2006, by David Starkey and Michael Brown.

Read More
About Us

Sales

Selling your most valuable asset can seem really daunting and you need to be sure that the agent you choose will do their best to achieve you the best possible sale price for your property.

Read More
Sales

Lettings

Finding a tenant for your property is only the beginning of being a Landlord.

Read More
Lettings

Register

Register for Property Updates

Register Here
Register

Valuation

How much is your property worth? Stop wondering and find out, with a property valuation from Starkey & Brown Sales & Lettings Agents.

Book Here
Valuation

Awards

Awards Starkey & Brown Sales & Lettings Agents.

Read More
Awards

Meet the Team

Meet the Team that keep Starkey & Brown Sales & Lettings Agents moving.

Read More
Meet the Team

Contact Us

Contact us here and we can assist you further.

Contact Us
Contact Us