For Sale

Glebe Farm, Scampton

Bed icon  4    Bath icon  4    receptions icon  2

£669,000

Save Saved
Contact Us

For further details on this property please call us

01522 845845


Book a Viewing

Features

  • Immaculate barn conversion holiday let
  • Generates circa £85,000 per annum
  • Peaceful rural setting near Lincoln
  • 1 mile from Lincolnshire Showground (year-round events)
  • Sleeps up to 13 guests
  • 4 bedrooms and 3 bathrooms
  • Impressive open-plan living area
  • Potential for revenue growth

Summary


Starkey&Brown are delighted to present this immaculately maintained holiday let - a spacious and beautifully converted barn offering a rare and highly profitable business opportunity. Set in a peaceful countryside location less than four miles from the cathedral city of Lincoln, it combines rural charm with excellent accessibility. The property is also just one mile from the Lincolnshire Showground, a well known venue hosting major events throughout the year, further boosting its appeal to visitors.


The property boasts an outstanding rental track record, currently generating approximately £85,000 per annum, with further potential to increase revenue.


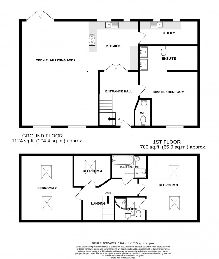
Accommodating up to 13 guests, this impressive barn conversion is sold fully furnished with high-quality fixtures and fittings throughout. The tastefully presented and generously proportioned accommodation includes a large open-plan living area, providing ample seating and entertaining space for many guests, adjacent utility room and four double bedrooms (one on the ground floor and three on the first floor), two ensuites and an additional bathroom.


Externally, the property offers ample parking for up to six vehicles, as well as a pleasant garden complete with outdoor furniture and a hot tub.


This highly successful business is offered with a strong pipeline of forward bookings, allowing the new owner to begin generating income immediately upon completion.


Full Details

Front door into:

Open Entrance Hallway (16' 7'' x 14' 9'' (5.05m x 4.49m))

Having stairs to first floor.

Living & Dining Area (29' 1'' x 16' 7'' (8.86m x 5.05m))

Having 2 sets of bi-fold doors leading out onto rear garden and wood burning stove. Open plan into:

Kitchen (13' 0'' x 10' 8'' (3.96m x 3.25m))

Having modern kitchen with a range of fitted wall and base units with rolled edge worktop surfaces incorporating cupboards and drawers, fully fitted appliances include fridge, freezer, microwave, 5 ring hob, dishwasher, washing machine and wine fridge.

Bedroom 3 (15' 3'' x 11' 6'' (4.64m x 3.50m))

Having double glazed window to front aspect with door through to:

En Suite (10' 9'' x 6' 4'' (3.27m x 1.93m))

Having double glazed window, airing cupboard with hot water cylinder, corner curved shower cubicle, wash hand basin and low level WC.

Bedroom 4 (12' 0'' x 9' 4'' (3.65m x 2.84m))

Having double glazed window and door to:

En Suite

Having 3 piece suite comprising curved shower cubicle, wash hand basin and low level WC.

Separate WC (9' 4'' x 3' 4'' (2.84m x 1.02m))

Having double glazed window, low level flush WC and wash hand basin.

First Floor Landing

Having access to bedrooms 1 and 2.

Bedroom 1 (20' 9'' max x 16' 3'' (6.32m x 4.95m))

Having 3 skylight windows and door to:

En Suite

Having skylight window, 3 piece suite comprising bath, wash hand basin and low level WC.

Bedroom 2 (20' 6'' max x 16' 3'' (6.24m x 4.95m))

Having skylight windows and door to:

En Suite

Having skylight window, 3 piece suite comprising panelled bath, wash hand basin and low level WC.

Floorplan for Glebe Farm, Scampton
EPC Graph for Glebe Farm, Scampton

About Us

Starkey & Brown Sales & Lettings Agents were formed in 2006, by David Starkey and Michael Brown.

Read More
About Us

Sales

Selling your most valuable asset can seem really daunting and you need to be sure that the agent you choose will do their best to achieve you the best possible sale price for your property.

Read More
Sales

Lettings

Finding a tenant for your property is only the beginning of being a Landlord.

Read More
Lettings

Register

Register for Property Updates

Register Here
Register

Valuation

How much is your property worth? Stop wondering and find out, with a property valuation from Starkey & Brown Sales & Lettings Agents.

Book Here
Valuation

Awards

Awards Starkey & Brown Sales & Lettings Agents.

Read More
Awards

Meet the Team

Meet the Team that keep Starkey & Brown Sales & Lettings Agents moving.

Read More
Meet the Team

Contact Us

Contact us here and we can assist you further.

Contact Us
Contact Us