For Sale

High Street, Reepham, Lincoln

Bed icon  3    Bath icon  2    receptions icon  2

Offers in Excess of £290,000

Save Saved
Contact Us

For further details on this property please call us

01522 845845


Book a Viewing

Features

  • Semi-Detached Property
  • Lounge & Sitting Room
  • Kitchen & Sun Room
  • Downstairs Shower Room & First Floor Bathroom
  • 3 Bedrooms
  • Detached Garage
  • Corner Plot Position
  • Village Location

Summary

Starkey&Brown is pleased to offer for sale this 3 bedroom semi-detached property located in the village of Reepham. Being a corner plot position with accommodation comprising of sitting room, lounge, sun room, kitchen, rear lobby and a downstairs shower room. Rising to the first floor are 3 bedrooms and a family bathroom. To the rear of the property there is a driveway with a dropped curb that provides parking for a small van and car, being mainly laid to lawn with access to the garage. The front of the property is mainly laid to lawn with pathway leading to front door.



The village of Reepham is well regarded for it's close proximity to Lincoln city centre, whilst maintaining it's rural feel, with the added benefits of a primary school, hikes and walking routes, post office, regular bus service and Fox & Hounds public house. To arrange a viewing contact Starkey&Brown. Council tax band: C. Freehold.

Full Details

Entrance Porch

Having front entrance door. Leading into:

Entrance Hall

Having understairs storage cupboard and radiator. Access to shower room, kitchen and lounge.

Shower Room

Having corner shower cubicle with fully tiled walls, double glazed window, wash hand basin, spot light, heated towel rail, low level WC and storage.

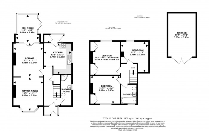
Lounge (13' 2'' x 11' 11'' (4.01m x 3.63m))

This room could also be used as a dining room. Having chimney breast (chimney not in use capped off), coving, radiator and archway leading to sitting rom. French doors leading into sun room.

Sitting Room (13' 5'' x 11' 11'' (4.09m x 3.63m))

Having bay window to front aspect, window seat, chimney breast with working original gas fireplace (not in use by current owners), fitted cupboard and coving. Access to:

Sun Room (11' 2'' x 9' 9'' (3.40m x 2.97m))

Being of uPVC construction, patio doors to rear aspect, oak flooring and ceiling fan.

Kitchen (12' 3'' x 11' 0'' (3.73m x 3.35m))

Having double glazed window to side aspect, wall and base units, sink and drainer unit, gas hob with extractor hood over, radiator, vinyl flooring. Access to rear aspect.

Rear Lobby

Views to the rear of the property, tiled flooring, double glazed door and cupboard housing boiler.

First Floor Landing

Having access to bedrooms and bathroom. Access to loft (Part boarded loft is very large with high roof space).

Bedroom 1 (13' 3'' x 11' 11'' to back of wardrobes (4.04m x 3.63m))

Having 2 fitted wardrobes, double glazed window to rear aspect and radiator.

Bedroom 2 (11' 11'' x 11' 4'' (3.63m x 3.45m))

Having uPVC double glazed window to front aspect, 1 built-in wardrobe and radiator.

Bedroom 3 (12' 5'' x 11' 1'' (3.78m x 3.38m))

Being L-shaped. Having double glazed window to rear aspect, built-in storage cupboard and radiator.

Family Bathroom

Having panelled bath, wash hand basin with storage cupboard beneath, low level WC, uPVC double glazed frosted window to front aspect, aqua board splashbacks, laminate flooring, airing cupboard housing hot water cylinder and radiator.

Garage (17' 3'' x 11' 2'' (5.25m x 3.40m))

Having electric and power.

Outside Front

Being mainly laid to lawn with pathway leading to front door, wildlife friendly shrubs and flowers.

Outside Rear/Side

Being mainly laid to lawn with large patio, decking area, good for entertaining external water tap. Chicken coop to remain. To the bottom of the garden by the driveway there is what remains of a chimney breast which used to be the village reading room. Seller is currently building raised beds for herbs.

Floorplan for High Street, Reepham, Lincoln
EPC Graph for High Street, Reepham, Lincoln

About Us

Starkey & Brown Sales & Lettings Agents were formed in 2006, by David Starkey and Michael Brown.

Read More
About Us

Sales

Selling your most valuable asset can seem really daunting and you need to be sure that the agent you choose will do their best to achieve you the best possible sale price for your property.

Read More
Sales

Lettings

Finding a tenant for your property is only the beginning of being a Landlord.

Read More
Lettings

Register

Register for Property Updates

Register Here
Register

Valuation

How much is your property worth? Stop wondering and find out, with a property valuation from Starkey & Brown Sales & Lettings Agents.

Book Here
Valuation

Awards

Awards Starkey & Brown Sales & Lettings Agents.

Read More
Awards

Meet the Team

Meet the Team that keep Starkey & Brown Sales & Lettings Agents moving.

Read More
Meet the Team

Contact Us

Contact us here and we can assist you further.

Contact Us
Contact Us