For Sale

Old Chapel Gardens, Glentham

Bed icon  0    Bath icon  0    

£325,000

Save Saved
Contact Us

For further details on this property please call us

01522 845845


Book a Viewing

Features

  • Fantastic development opportunity
  • Full planning for five detached houses
  • Approximately 1.27 acres
  • Village Location
  • 2 x three bed detached
  • 3 x four bed detached
  • WLDC planning reference - WL/2024/00083
  • Call today for more information

Summary



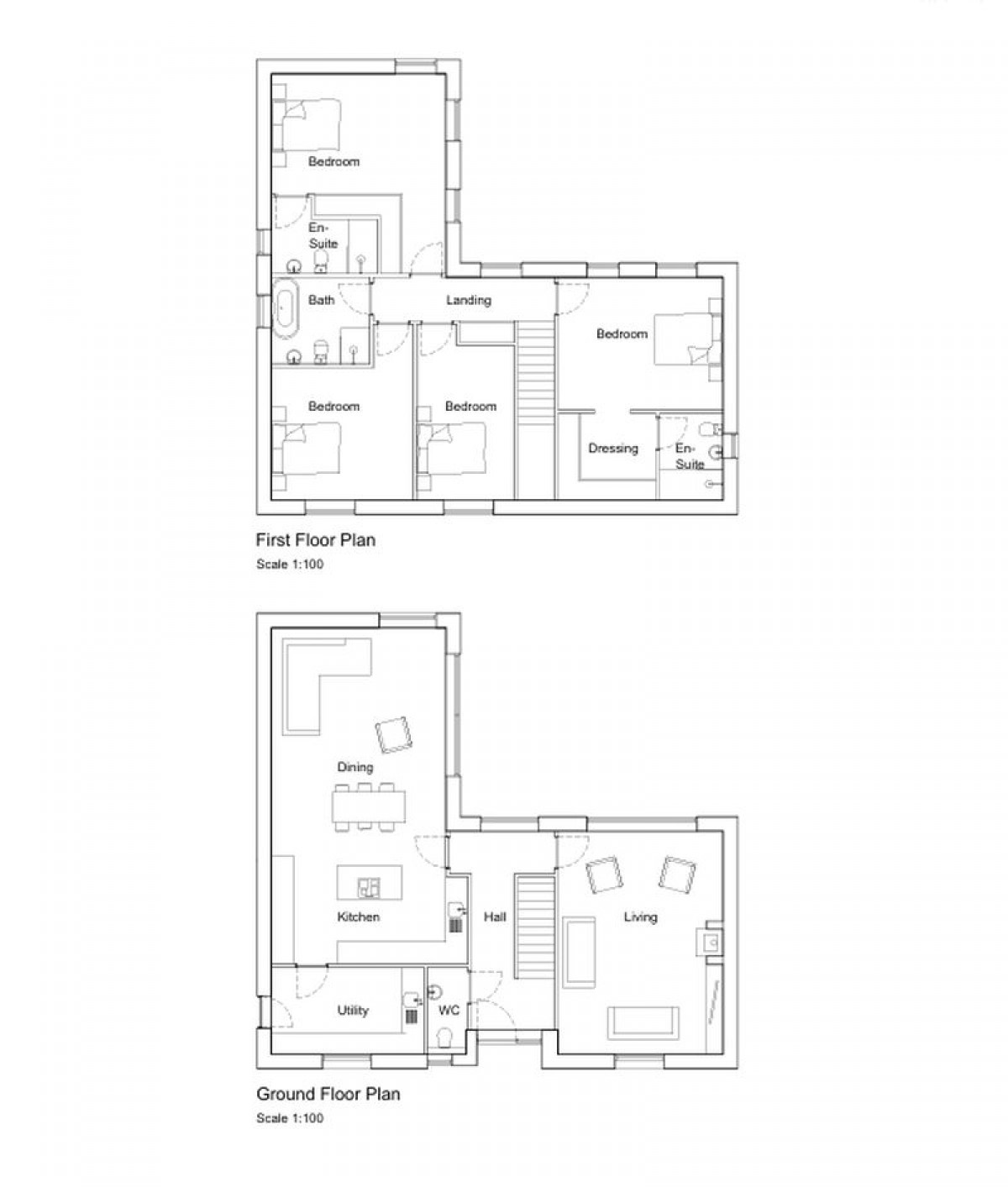
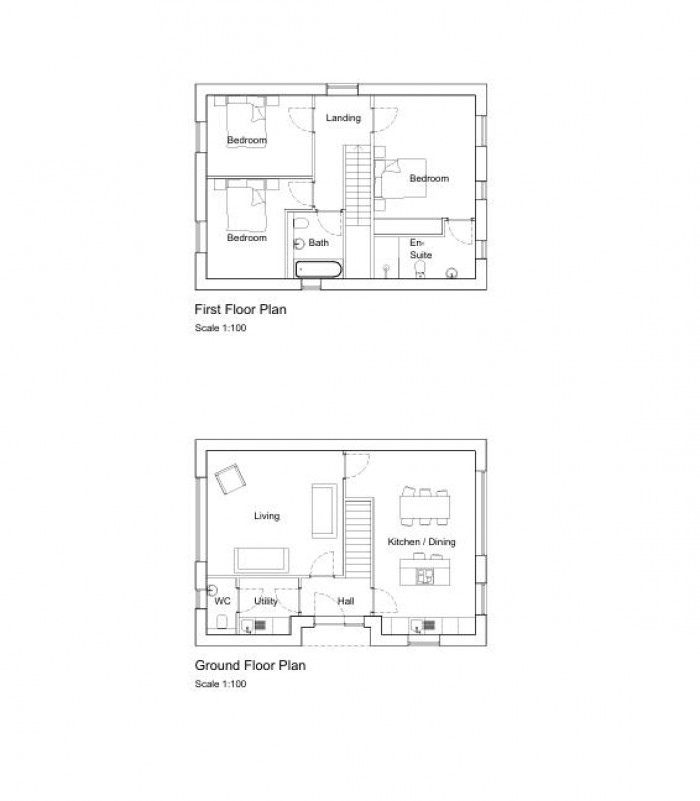
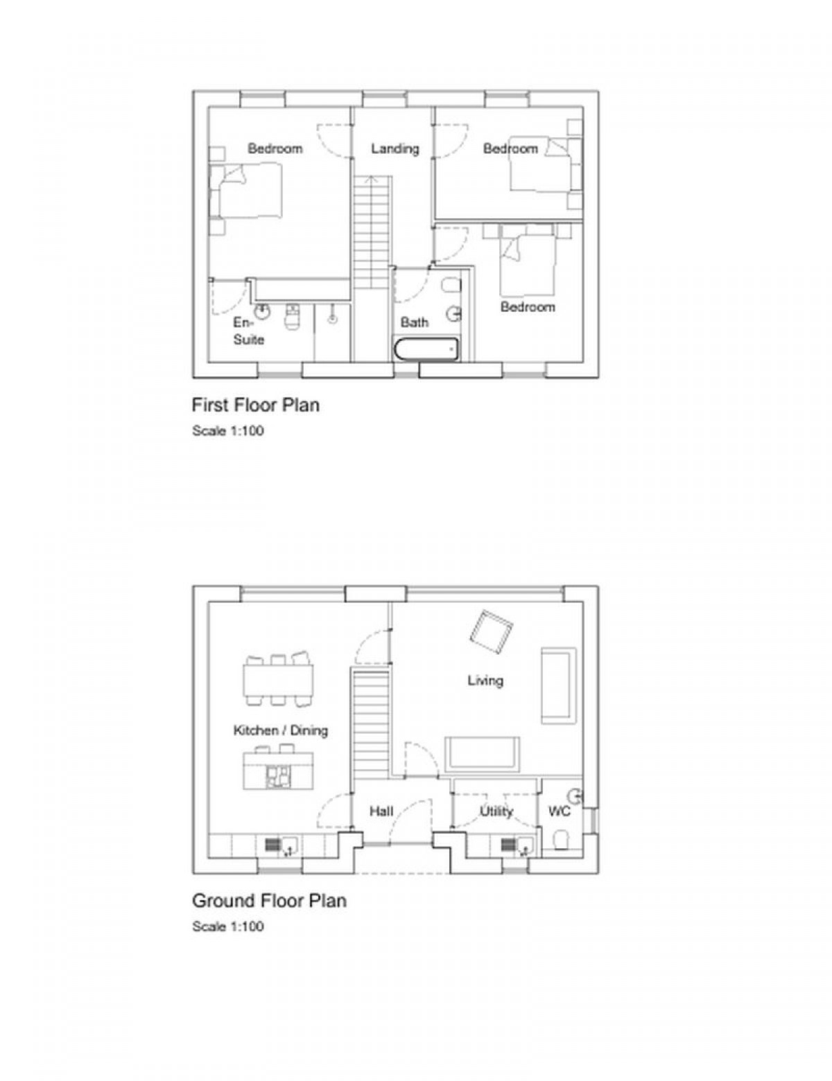
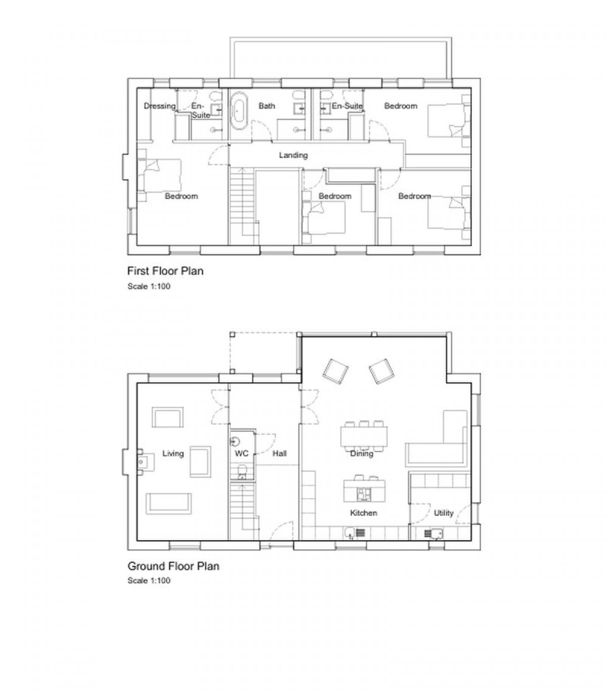
FULL PLANINNG FOR FIVE DETACHED HOUSES!

Located within the village of Glentham, ideally located only 8 miles from Market Rasen, 12 miles from Gainsborough and 14 miles from the cathedral city of Lincoln, is this fantastic development site which extends to approximately 1.27 acres, with full planning permission granted for five detached houses which stand upon generous plots. Glentham benefits from a public house, a village shop, village hall and a garden centre. One of the plots benefits from its own private access whilst the other plots form a pleasant courtyard development. Full planning permission has been granted and further information can be found by searching the West Lindsey planning portal using the reference WL/2024/00083. Please note that further land may be available subject to negotiation. Call today for further information.
Floorplan for Old Chapel Gardens, Glentham Floorplan for Old Chapel Gardens, Glentham Floorplan for Old Chapel Gardens, Glentham

About Us

Starkey & Brown Sales & Lettings Agents were formed in 2006, by David Starkey and Michael Brown.

Read More
About Us

Sales

Selling your most valuable asset can seem really daunting and you need to be sure that the agent you choose will do their best to achieve you the best possible sale price for your property.

Read More
Sales

Lettings

Finding a tenant for your property is only the beginning of being a Landlord.

Read More
Lettings

Register

Register for Property Updates

Register Here
Register

Valuation

How much is your property worth? Stop wondering and find out, with a property valuation from Starkey & Brown Sales & Lettings Agents.

Book Here
Valuation

Awards

Awards Starkey & Brown Sales & Lettings Agents.

Read More
Awards

Meet the Team

Meet the Team that keep Starkey & Brown Sales & Lettings Agents moving.

Read More
Meet the Team

Contact Us

Contact us here and we can assist you further.

Contact Us
Contact Us